首页
设计团队
精选案例
服务流程
服务配套
关于恒光
马上设计报价
24小时咨询热线
023-6330 3339
办公空间
餐饮娱乐
生活教育
展厅售楼部
幕墙工程
工厂厂房
酒店宾馆
主材
辅料
消防
空调
企业介绍
企业文化
新闻
客户名录
联系我们
家装团队
家装案例
标准工程
主力套餐
办公空间
餐饮娱乐
生活教育
展厅售楼部
幕墙工程
工厂厂房
酒店宾馆
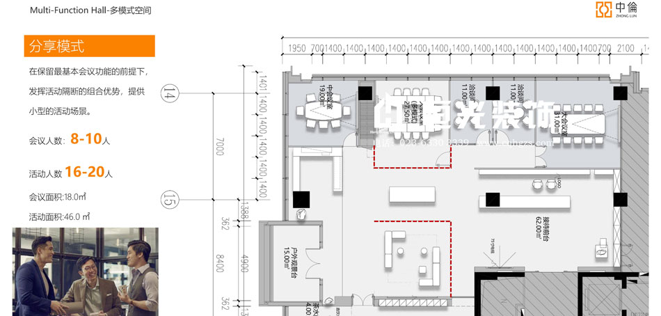
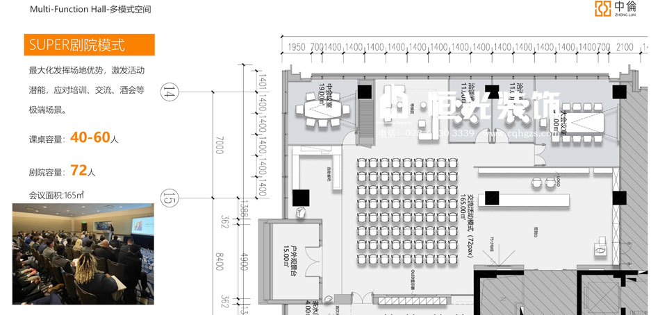
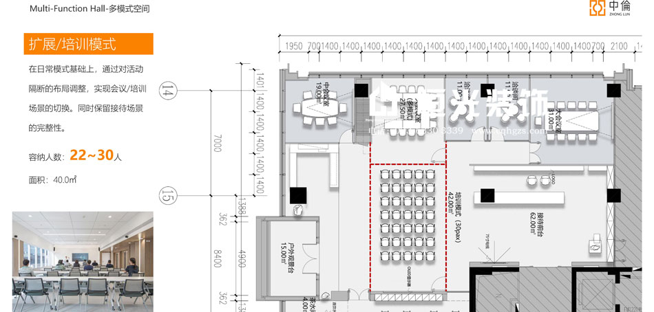
项目名称
重庆中伦律所办公室
项目类别
办公空间
浏览次数
296
设计说明
:
上一个:
重庆兆州科技办公楼
下一个:
没有资料